Сейчас работаем, звоните

+375 (44) 575-60-66
Узнайте с чего
начать
строительство
дома, звоните!
+375 (44) 575-60-66
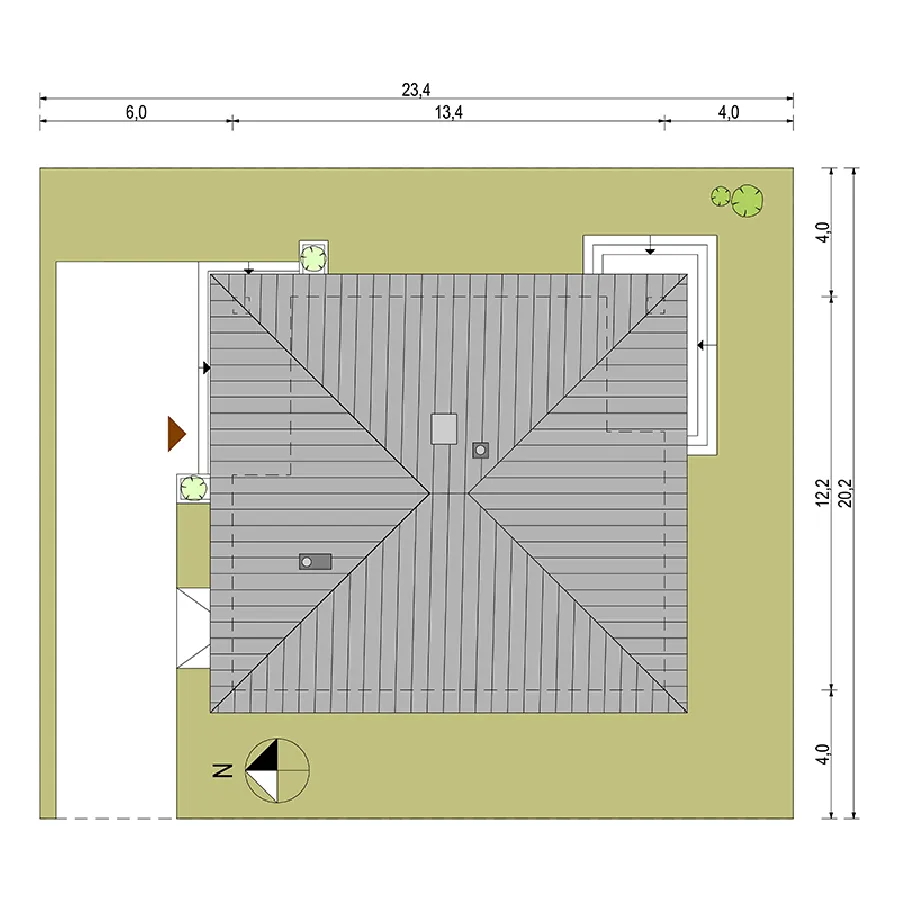
Характеристики:
  • Площадь: 146 м2
  • Материал стен: блоки
  • Размеры: 12.2x13.4 м
  • Этажность: 1 этаж
  • Стоимость:
Описание
Проекты семьи Бланка предлагают одноэтажный дом с приблизительно квадратной планировкой и вальмовой крышей, покрывающей квартиру и внешние ниши, подобно более крупным домам Ксения или Кароль. Проект дома Бланка Бобо имеет пропорционально уменьшенную планировку, с функциональной программой и расположением комнат, заимствованными из более крупного дома Бланка. В передней части привлекает внимание котельная с прачечной, доступная из прихожей, соединяющая квартиру с гаражом. Открытая жилая зона, состоящая из кухни с кладовой и гостиной, простирается от входа до сада. В здание встроены угловые террасы на опорах. Их глубина может регулироваться для увеличения комнат или более надежной защиты от солнца и дождя. Центральная часть планировки отведена под прихожую и гостевой санузел. Далее расположены три спальни на четыре человека, каждая с дополнительной, более просторной ванной комнатой. Современная концепция дизайна дома Бланка, уникальная среди одноэтажных домов с гаражом площадью около 90 квадратных метров, подчеркивается угловыми окнами и большими раздвижными стеклянными дверями в гостиной. Это позволяет летом интегрировать сад в семейное и общественное пространство.
Хотите построить такой дом?
Постройте его вместе с нами! Назначьте встречу с нашим инженером и он подберет для вас, лучший вариант и ответит на все интересующие вопросы.

Рассчитать
стоимость

Оставить
заявку

Получить
консультацию

Лучший
строй. материал

Наверх